Icon search Icon Facebook Icon Instagram Icon Twitter Icon LinkedIn Icon Play ANBI icon-checkbox Vriendenloterij Bijzondere-locaties Bijzondere-locaties Monument-en-Bed Monument-en-Bed Museumhuizen icon-huren-nav Museumhuizen Hendrickdekeyser Hendrickdekeyser icon-maps icon-left icon-right icon-close icon-phone-call icon-email icon-kamers icon-lijst icon-perceeloppervlak icon-plattegrond icon-woonoppervlak icon-checkmark icon-buitenruimte icon-cart icon-remove icon-quote icon-calendar icon-guests
Huren
te huur
Bedrijfsruimte

Wagenaarstraat 1

4331 CX Middelburg, Zeeland

Huurprijs per maand
Op aanvraag
Beschikbaar per
Bouwjaar
1730
Aantal kamers
19 kamers
Oppervlak
975
m2
Buitenruimte
550 m2
Circa 975 m2 kantoorruimte in een voormalig patriciërs huis aan de Wagenaarstraat, een van de oudste straten van Middelburg, met eigen parkeerterrein.

Kenmerken

Algemeen
Huurprijs per maand
Op aanvraag
Beschikbaar per
Oppervlakten en inhoud
Oppervlak
975
m2
Gebruiksoppervlak
975 m2
Buitenruimte(n)
550 m2
Indeling
Aantal kamers
19
Aantal slaapkamers
0
Aantal badkamers
0
Aantal toiletten
7
Aantal woonlagen
0
Parkeergelegenheid
Soort parkeergelegenheid
Parkeren eigen terrein

Circa 975 m2 kantoorruimte in een voormalig patriciërs huis aan de Wagenaarstraat, een van de oudste straten van Middelburg. Het gebouw werd in 1735 oorspronkelijk gebouwd als woonhuis en was vanaf 1888 tot 1972 in handen van het Zeeuws Genootschap der Wetenschappen. Het werd verbouwd tot vergadergebouw en museum. De laatste jaren is het gebouw in gebruik geweest als kantoorruimte.

Vanaf de straat is goed te zien dat de 18de-eeuwse voorbouw als een los blok voor het middeleeuwse huis staat. Aan de linkerzijde van het pand staat de voormalige bibliotheek van het Zeeuws Genootschap. Deze bibliotheek maakt geen deel uit van het aangeboden gebouw.

In de achtervleugel zijn twee kamers bewaard gebleven met stucplafonds van omstreeks 1710. Deze zijn in de trant van Daniel Marot met fijn uitgevoerde bloemslingers, vogels en spelende putti en deze behoren tot de mooiste van ons land.
In 1888 werd een van de twee nog overgebleven historische houten gevels die Middelburg nog rijk is geplaatst tegen de zijgevel van het gebouw. Deze historische houten topgevel was afkomstig van een huis aan de Lange Delft en is nog steeds aanwezig.

Het gebouw is uitstekend geschikt voor kantoorruimte, mede vanwege de representatieve uitstraling van zowel de buitenzijde als het interieur en vanwege de aanwezigheid van een eigen parkeerterrein grenzend direct aan de achterzijde van het gebouw. Ook een woonbestemming is denkbaar, of een combinatie van wonen/werken. Momenteel zijn er echter (nog) onvoldoende voorzieningen aanwezig welke voor bewoning benodigd zijn.

Indeling:

Souterrain:
Circa 163 m2 opslagruimte verdeeld over meerdere ruimten alsmede een toiletruimte. Het souterrain is bereikbaar via een tweetal entrees aan de voorzijde van het gebouw alsmede middels een inpandige entree via het trappenhuis.

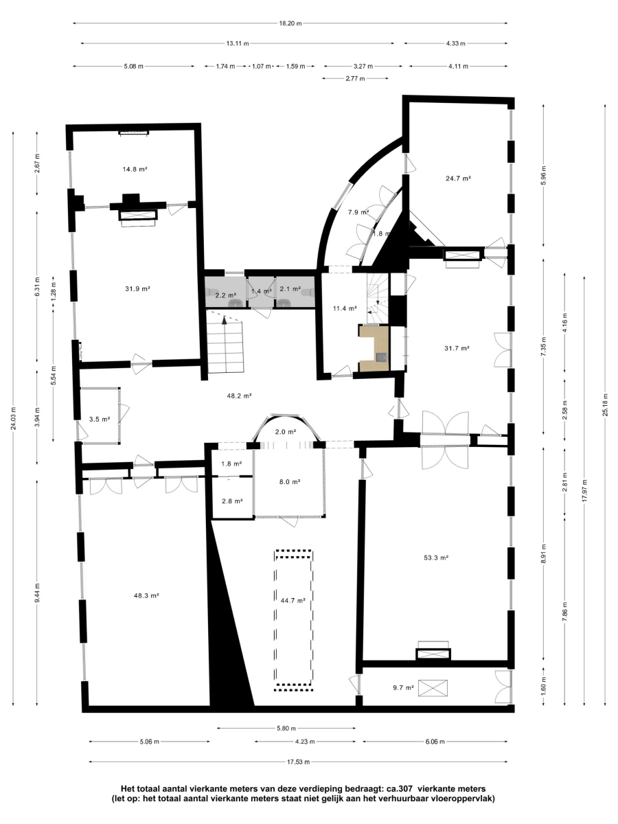
Begane grond: Circa 307 m2 bedrijfsruimte als volgt ingedeeld; entree via bordestrap aan de voorzijde van het gebouw, royale hal met glazen tochtportaal en toegang tot de lift, toiletgroep, ruime receptie, eenvoudige pantry, achteringang vanaf het achtergelegen parkeerterrein, zes vertrekken deels voorzien van fraaie stucplafonds en marmeren schouwen waarvan enkele zijn voorzien van historische schilderingen erboven.

1e verdieping: Circa 285 m2 bedrijfsruimte bereikbaar via het imposante trappenhuis met negen vertrekken, een toiletgroep en toegang tot de lift.

2e verdieping: Circa 220 m2 bedrijfsruimte bereikbaar via een eenvoudige trap met een overloop, toiletgroep, gang met toegang tot vier vertrekken en een entree naar een ruime zolderruimte aan de achterzijde van het gebouw. Er is tevens een toegang via een luik en losse trap naar een bergvliering aan de voorzijde van het gebouw.

Gelegen in het historische centrum van Middelburg, op loopafstand van winkels, gezellige restaurants en openbaar vervoer. Het NS station bevindt zich op 14 minuten loopafstand.

Blijf ontdekken

met onze maandelijkse nieuwsbrief

  • Verhalen uit bijzondere monumenten
  • Activiteiten en openstellingen
  • Actueel huuraanbod
Ontvang de nieuwsbrief