Icon search Icon Facebook Icon Instagram Icon Twitter Icon LinkedIn Icon Play ANBI icon-checkbox Vriendenloterij Bijzondere-locaties Bijzondere-locaties Monument-en-Bed Monument-en-Bed Museumhuizen icon-huren-nav Museumhuizen Hendrickdekeyser Hendrickdekeyser icon-maps icon-left icon-right icon-close icon-phone-call icon-email icon-kamers icon-lijst icon-perceeloppervlak icon-plattegrond icon-woonoppervlak icon-checkmark icon-buitenruimte icon-cart icon-remove icon-quote icon-calendar icon-guests
Huren
verhuurd
Woonhuis

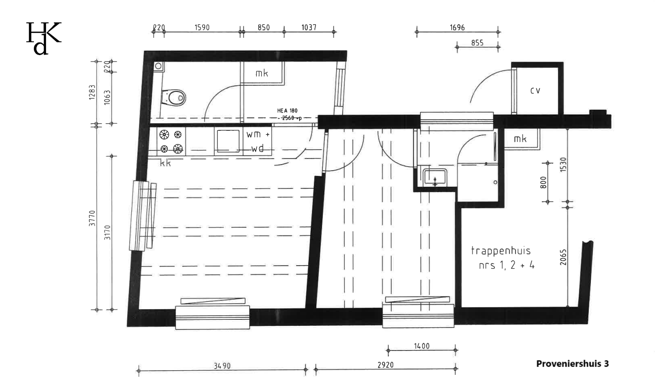
Proveniershuis 3

3111 GD Schiedam, Zuid-Holland

Huurprijs per maand
Op aanvraag
Beschikbaar per
Niet van toepassing (verhuurd)
Bouwjaar
1756
Aantal kamers
2 kamers
Oppervlak
30
m2
Buitenruimte
0 m2
Sfeervolle 2 kamer hofjeswoning in het centrum van Schiedam met uitzicht op de Schie.

Kenmerken

Algemeen
Huurprijs per maand
Op aanvraag
Servicekosten
Op aanvraag
Huurovereenkomst
onbepaalde tijd
Huurperiode
minimaal 1 jaar
Beschikbaar per
Niet van toepassing (verhuurd)
Huisdieren
nee
Oppervlakten en inhoud
Oppervlak
30
m2
Gebruiksoppervlak
30 m2
Buitenruimte(n)
0 m2
Indeling
Aantal kamers
2
Aantal slaapkamers
1
Aantal badkamers
1
Aantal toiletten
1
Badkamervoorzieningen
douche
Aantal woonlagen
0

Indeling: De woning is op de begane grond gelegen en bestaat uit een woonkeuken (ca. 13m²) met uitzicht op de Schie, een slaapkamer (ca. 10m²) en een badkamer (ca.2 m²) met douche en wastafel. De woning heeft een separaat toilet.

De woningen aan het hof delen een grote gemeenschappelijke tuin.

Locatie: Op loopafstand van het treinstation en met prima OV-verbindingen voor de deur.

Bijzonderheden: Huisdieren zijn niet toegestaan. Huisregels zijn van toepassing. Servicekosten €30,- per maand.

Blijf ontdekken

met onze maandelijkse nieuwsbrief

  • Verhalen uit bijzondere monumenten
  • Activiteiten en openstellingen
  • Actueel huuraanbod
Ontvang de nieuwsbrief