Kenmerken
- Huurprijs per maand
- Op aanvraag
- Servicekosten
- Op aanvraag
- Huurovereenkomst
- onbepaalde tijd
- Huurperiode
- minimaal 1 jaar
- Beschikbaar per
- Niet van toepassing (verhuurd)
- Huisdieren
- in overleg
- Oppervlak
-
186m2
- Gebruiksoppervlak
- 186 m2
- Buitenruimte(n)
- 0 m2
- Aantal kamers
- 5
- Aantal slaapkamers
- 3
- Aantal badkamers
- 2
- Aantal toiletten
- 3
- Badkamervoorzieningen
- douche,wastafel,ligbad,toilet
- Aantal woonlagen
- 0
- Soort parkeergelegenheid
- Parkeren eigen terrein
Het uit 1425 stammende Tolhuis is beeldbepalend voor de stad Gorinchem. In het pand zijn 2 woningen, een kantoor en een vakantiewoning van onze vereniging gerealiseerd.
De ruime woning aan de dijkzijde (ca. 186 m2) komt binnenkort beschikbaar voor de verhuur.
Indeling woning: Begane grond: Prive entree (15m2) aan straatzijde met gang (12m2), berging en toilet. Grote woonkamer (24m2) met separate eet /studeerkamer (16m2) en ruime woonkeuken (18m2).
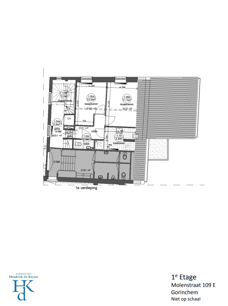
Eerste verdieping Twee slaapkamers (13m2 en 11m2) beiden met een leuk gezicht op de Boven Merwede. Badkamer met douche, WM opstelplaats en een separaat toilet.
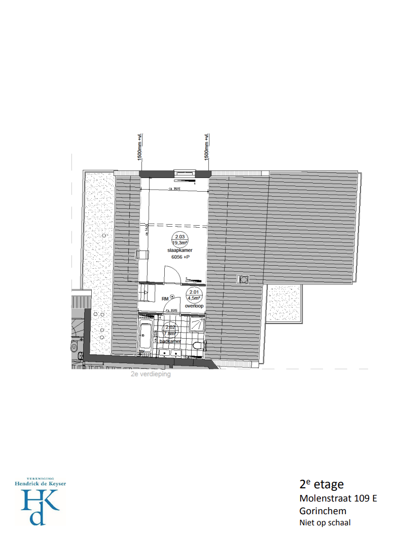
Tweede verdieping Grote slaapkamer (19m2) met overloop en prive badkamer (8 m2) met ligbad, douche en dubbele wastafel.
Parkeersituatie Mogelijkheid voor het parkeren van 2 auto's naast de woning op eigen terrein.


















