Representatieve kantoorruimte in een fraai middeleeuws pand in het centrum van Doesburg.
Kenmerken
Algemeen
- Huurprijs per maand
- Op aanvraag
- Huurovereenkomst
- onbepaalde tijd
- Huurperiode
- minimaal 2 jaar
- Beschikbaar per
- Niet van toepassing (verhuurd)
- Huisdieren
- in overleg
Oppervlakten en inhoud
- Oppervlak
-
115m2
- Gebruiksoppervlak
- 115 m2
- Buitenruimte(n)
- 0 m2
Indeling
- Aantal kamers
- 4
- Aantal slaapkamers
- 0
- Aantal badkamers
- 0
- Aantal toiletten
- 2
- Aantal woonlagen
- 0
Parkeergelegenheid
- Soort parkeergelegenheid
- Betaald parkeren
Indeling: Aan de achterzijde grenst een woning, en op de etages bevinden zich twee bovenwoningen. Deze woningen maken geen deel uit van hetgeen thans te huur wordt aangeboden.
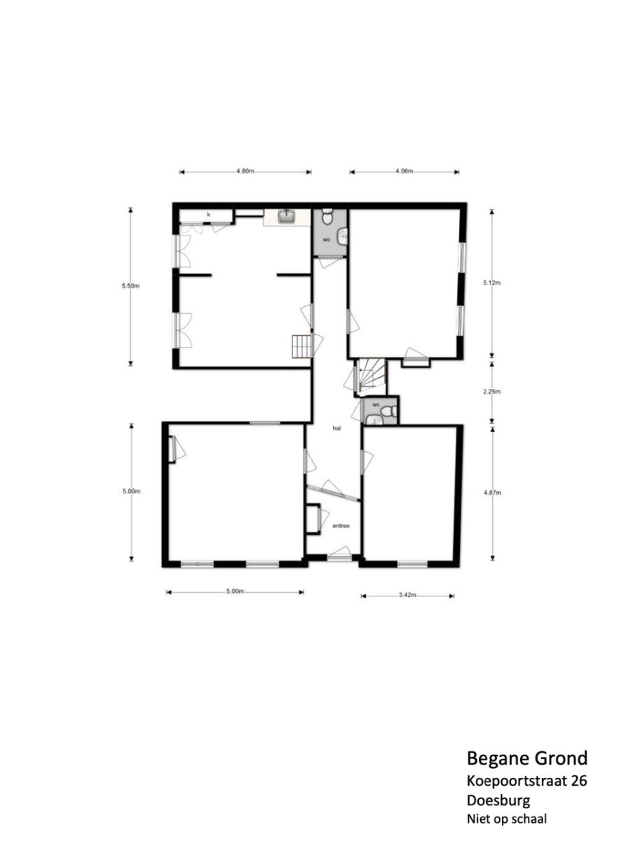
Begane grond: Entree, vestibule met meterkast en glazen pui, gang voorzien van granitovloer met toegang tot een viertal kantoorruimten (ca. 25 m2, 17 m2, 20 m2 en 26 m2), waarvan één ruimte is voorzien van een pantry. In de gang zijn twee toiletruimten aanwezig. Droge opslagkelder bestaande uit twee ruimten, bereikbaar vanuit de gang middels twee entrees.
Bijzonderheden: De kelderruimte is slechts als opslagruimte bruikbaar en is bereikbaar via een vrij steile trap.











