Kenmerken
- Huurprijs per maand
- Op aanvraag
- Servicekosten
- Op aanvraag
- Huurovereenkomst
- onbepaalde tijd
- Huurperiode
- minimaal 1 jaar
- Beschikbaar per
- Niet van toepassing (verhuurd)
- Huisdieren
- nee
- Oppervlak
-
47m2
- Gebruiksoppervlak
- 47 m2
- Buitenruimte(n)
- 7 m2
- Aantal kamers
- 3
- Aantal slaapkamers
- 1
- Aantal badkamers
- 1
- Aantal toiletten
- 1
- Badkamervoorzieningen
- douche
- Aantal woonlagen
- 0
- Soort parkeergelegenheid
- Vergunningsplichtig parkeren
Kopwoning in het sfeervolle Hofje van Belois (1926) in Schiedam. Het hofje werd gebouwd naar een ontwerp van de Schiedamse architect A. Stahlie en bestaat uit 36 woningen, opgesteld rond een besloten binnentuin.
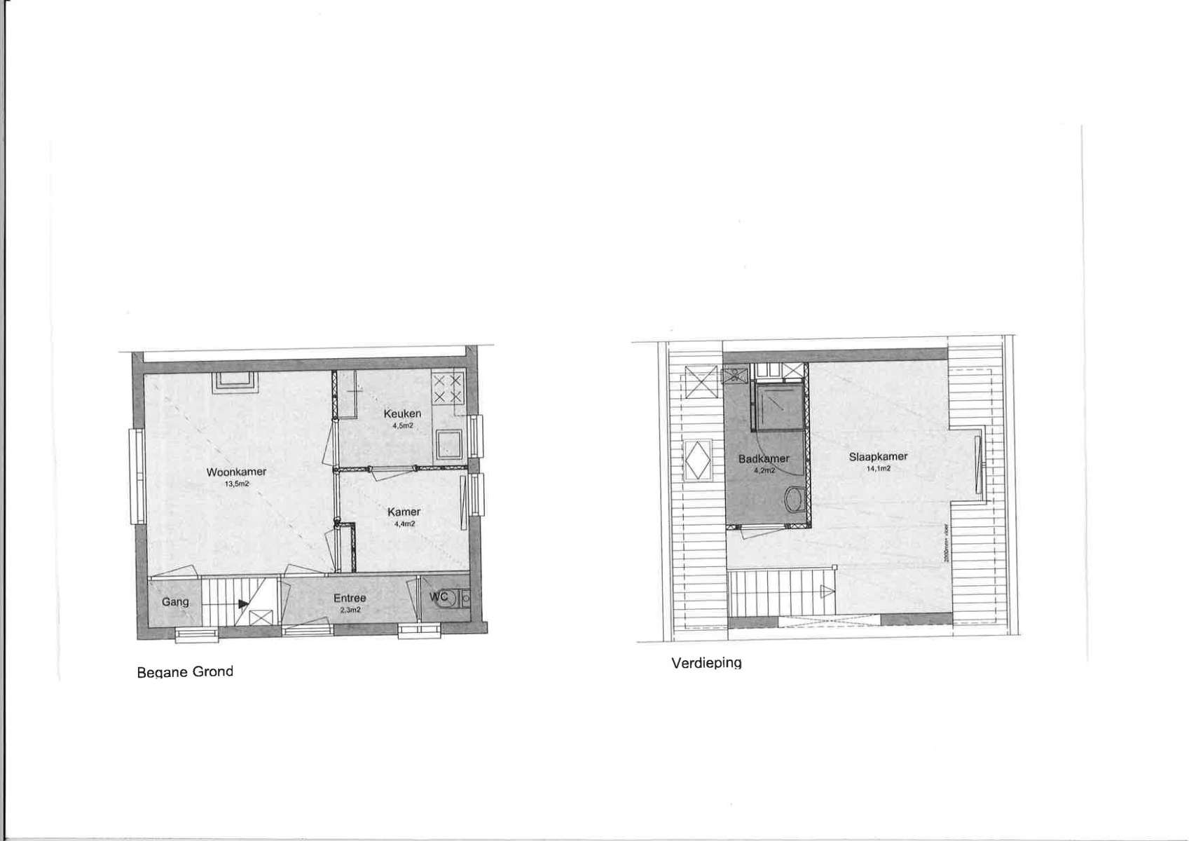
Begane grond Entree, hal met trapkast. Gezellige woonkamer (ca. 14 m²) met daarnaast een eetkamer (ca. 5 m²) en een keuken (ca. 4,5 m²) met keukenblok voorzien van een kookplaat en opstelplaats koelkast. Toiletruimte en trapopgang.
Eerste verdieping Ruime zolderverdieping met dakkapel, met hoge kapconstructie en balken in het zicht. Hier vindt u een lichte slaapkamer (ca. 15 m²) en aangrenzende moderne badkamer (ca. 6 m²) met douchecabine, wastafel en aansluiting voor een wasmachine.
Bijzonderheden Riante gemeenschappelijke tuin waarin ook een gemeenschappelijke fietsenberging.
Inwonende kinderen en huisdieren zijn niet toegestaan. Doelgroep 1- of 2 persoons voor de specifieke leeftijdscategorie 45 +.
Locatie Rustig gelegen in Schiedam-West met het fraaie Julianapark “om de hoek”, het centrum en de havens eveneens op loopafstand. In de straat bevindt zich de bushalte richting centrum en station. Het NS-station bevindt zich op ca. 8 fietsminuten afstand.
Als bijlage plattegronden van een soortgelijke woning in het hofje. Maatvoering kan afwijken.










