Icon search Icon Facebook Icon Instagram Icon Twitter Icon LinkedIn Icon Play ANBI icon-checkbox Vriendenloterij Bijzondere-locaties Bijzondere-locaties Monument-en-Bed Monument-en-Bed Museumhuizen icon-huren-nav Museumhuizen Hendrickdekeyser Hendrickdekeyser icon-maps icon-left icon-right icon-close icon-phone-call icon-email icon-kamers icon-lijst icon-perceeloppervlak icon-plattegrond icon-woonoppervlak icon-checkmark icon-buitenruimte icon-cart icon-remove icon-quote icon-calendar icon-guests
Huren
verhuurd onder voorbehoud
Woonhuis

Beulingstraat 25

1017 BA Amsterdam, Noord-Holland

Huurprijs per maand
€ 3.250,- excl.
Beschikbaar per
Bouwjaar
1400
Aantal kamers
4 kamers
Oppervlak
150
m2
Buitenruimte
0 m2
Wonen en werken in een karakteristiek huis met uitzicht op de Herengracht.

Kenmerken

Algemeen
Huurprijs per maand
€ 3.250,- excl.
Huurovereenkomst
onbepaalde tijd
Huurperiode
minimaal 1 jaar
Glasverzekering
€ 4,88 excl.
Beschikbaar per
Waarborgsom
€ 6.500,- excl.
Oppervlakten en inhoud
Oppervlak
150
m2
Gebruiksoppervlak
150 m2
Overige inpandige ruimte
40 m2
Buitenruimte(n)
0 m2
Indeling
Aantal kamers
4
Aantal slaapkamers
3
Aantal badkamers
1
Badkamervoorzieningen
douche,dubbele wastafel,ligbad
Aantal woonlagen
0

Ontdek dit karakteristieke woonhuis aan de Beulingstraat in hartje Amsterdam met uitzicht over de Herengracht. Dankzij de dubbele entree ideaal voor het combineren van wonen en werken.

Indeling

Souterrain Ruime berging van 35 m² met eigen entree.

Begane grond Lichte woon- of werkruimte van 32 m² met separate entree en groot raam dat een prachtig uitzicht biedt op de Herengracht en Beulingstraat. Toilet (1,5 m²) en interne doorgang naar entree woonhuis.

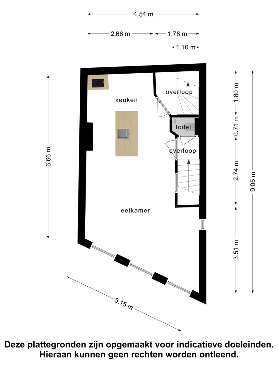
Eerste verdieping Bereikbaar via eigen straatentree of interne doorgang. Royale woonkeuken van 29 m² met authentieke provisiekast. Toilet bij de trapopgang.

Tweede verdieping Slaapkamer van 25 m² met vaste kast en moderne badkamer van 8 m² met ligbad, inloopdouche, dubbele wastafel en toilet.

Derde verdieping Slaapkamer aan de voorzijde van 18 m² en ruime overloop met ruimte voor wasmachine en droger.

Zolder Zolderberging van 5 m².

Locatie Pittoreske zijstraat tussen Singel en Herengracht, op steenworp afstand van Koningsplein en Leidsestraat. Restaurants, uitgaansgelegenheden, winkels en cultuur om de hoek. Openbaar vervoer binnen enkele minuten bereikbaar. Betaald parkeren.

Blijf ontdekken

met onze maandelijkse nieuwsbrief

  • Verhalen uit bijzondere monumenten
  • Activiteiten en openstellingen
  • Actueel huuraanbod
Ontvang de nieuwsbrief