Icon search Icon Facebook Icon Instagram Icon Twitter Icon LinkedIn Icon Play ANBI icon-checkbox Vriendenloterij Bijzondere-locaties Bijzondere-locaties Monument-en-Bed Monument-en-Bed Museumhuizen icon-huren-nav Museumhuizen Hendrickdekeyser Hendrickdekeyser icon-maps icon-left icon-right icon-close icon-phone-call icon-email icon-kamers icon-lijst icon-perceeloppervlak icon-plattegrond icon-woonoppervlak icon-checkmark icon-buitenruimte icon-cart icon-remove icon-quote icon-calendar icon-guests
Huren
te huur
Woonhuis

Oudezijds Achterburgwal 151 1

1012 DH Amsterdam

Huurprijs per maand
€ 3.500,- excl.
Beschikbaar per
Bouwjaar
1644
Aantal kamers
4 kamers
Oppervlak
153
m2
Buitenruimte
0 m2
Ruim appartement met drie slaapkamers in hartje Amsterdam

Kenmerken

Algemeen
Huurprijs per maand
€ 3.500,- excl.
Huurovereenkomst
onbepaalde tijd
Huurperiode
minimaal 1 jaar
Glasverzekering
€ 4,88 excl.
Beschikbaar per
Waarborgsom
€ 7.000,- excl.
Huisdieren
in overleg
Oppervlakten en inhoud
Oppervlak
153
m2
Gebruiksoppervlak
153 m2
Overige inpandige ruimte
17 m2
Buitenruimte(n)
0 m2
Indeling
Aantal kamers
4
Aantal slaapkamers
3
Aantal badkamers
1
Aantal toiletten
3
Badkamervoorzieningen
douche,wastafel,ligbad,toilet
Aantal woonlagen
2
Parkeergelegenheid
Soort parkeergelegenheid
Betaald parkeren

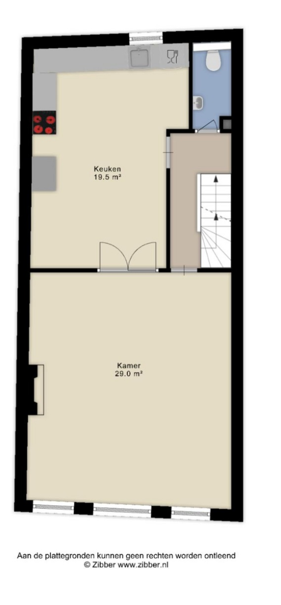
Indeling Achter een monumentale gevel uit 1644 gaan drie grote panden schuil. Het appartement dat te huur wordt aangeboden bevindt zich op de eerste, tweede en de zolderverdieping in het linkerdeel van dit statige pand.

Eerste verdieping Het entreeportaal wordt gedeeld met het appartement op de begane grond. De eerste verdieping is bereikbaar via een eigen trappenhuis. Op de eerste verdieping bevinden zich de woonkamer en eetkeuken. Er is op deze verdieping een separaat toilet met fontein.

Tweede verdieping Op de tweede verdieping bevinden zich twee ruime slaapkamers. Ook op deze verdieping is een separaat toilet met fontein aanwezig.

Zolderverdieping De ruime overloop is tevens geschikt als kastenkamer en biedt toegang tot een slaapkamer aan de voorzijde en een moderne badkamer met bad, douche en toilet aan de achterzijde.

Souterrain In het soutterain bevindt zich een ruime berging.

Locatie Nabij de Dam, diverse tram- en metroverbindingen en het Centraal Station.

Parkeersituatie Betaald parkeren of met vergunning.