Kenmerken
- Huurprijs per maand
- Op aanvraag
- Huurovereenkomst
- onbepaalde tijd
- Huurperiode
- minimaal 1 jaar
- Beschikbaar per
- Niet van toepassing (verhuurd)
- Huisdieren
- in overleg
- Bijzonderheden
Naast isolatie van de woning is er een PVT installatie aanwezig. Deze installatie bestaat uit PVT (photovoltaic thermic) panelen op het dak en een warmtewisselaar met een buffervat. PVT panelen zijn een combinatie van zonnepaneel en zonneboiler (watercollector). Hierbij wordt warmte (warmwater) en stroom in dezelfde collector opgewekt. Het water wordt gebruikt voor het voorverwarmen van het water voor huisgebruik en verwarming. De stroom wordt gebruikt voor het voeden van de luchtwarmtepomp. Op deze manier is elke woning zijn eigen energieleverancier
- Oppervlak
-
73m2
- Gebruiksoppervlak
- 73 m2
- Buitenruimte(n)
- 137 m2
- Aantal kamers
- 1
- Aantal slaapkamers
- 2
- Aantal badkamers
- 1
- Aantal toiletten
- 2
- Aantal woonlagen
- 1
- Soort parkeergelegenheid
- Vrij parkeren
Begane grond: De entree (4 m2) geeft toegang naar de bergruimte (9,5 m2), separaat toilet (1 m2), en de woonkamer (26 m2). Aan de achterzijde van de woning is de keuken (4,7m2) gesitueerd. De keuken, evenals de inpandige bergruimte, geven toegang tot de achtergelegen tuin (125 m2).
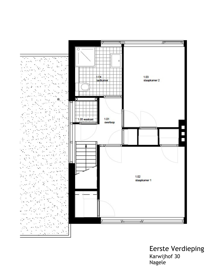
Eerste verdieping: De overloop met waskast (4,2 m2) geeft toegang tot een slaapkamer (12 m2) met twee vaste opbergkasten, een slaapkamer (9,5 m2) met een vaste opbergkast en een badkamer (4,8 m2) met wastafel, douche en toilet.
Bijzonderheden: Ten behoeve van energiebesparing zijn er in deze woning diverse maatregelen getroffen en de woning is niet meer voorzien van een gasaansluiting.














